Uskoro proširenje groblja „Barakovac“
29.02.2024 | 11:57
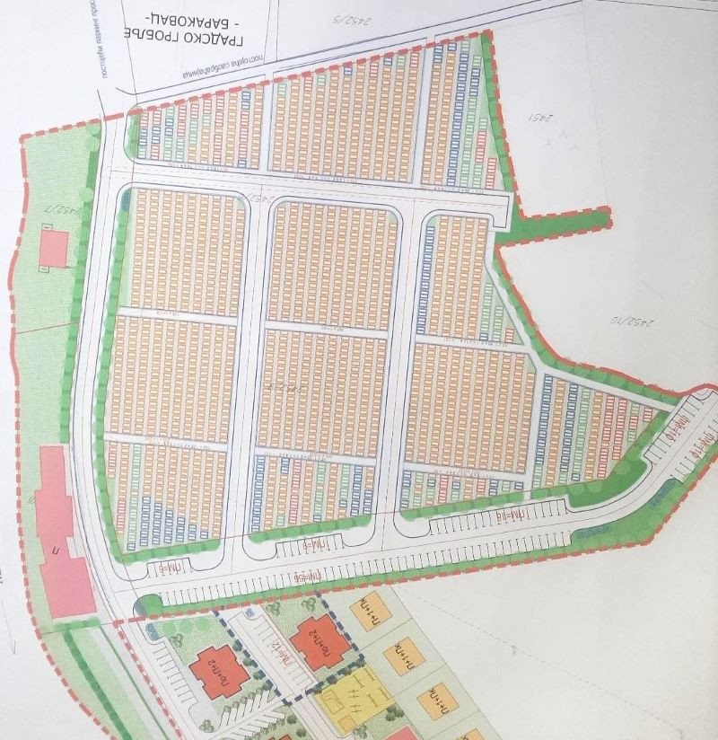
Problem nedovoljnog broja mjesta na gradskom groblju „Barakovac“ uskoro će biti riješen proširenjem na novu parcelu. Kapaciteti će biti uvećani za 2.500 grobnih mjesta, uz kompletnu izgradnju infrastrukture i sale za sofre.
Radovi na novoj parceli površine 33.000 metara kvadratnih na Barakovcu počinju uskoro, potvrdili su za Radio Foču u Odjeljenju za prostorno uređenje i stambeno-komunalne poslove opštine Foča. Prve aktivnosti odnose se na uklanjanje ograde između postojeće i nove parcele i proširenje pristupne saobraćajnice.
Načelnik Odjeljenja Ranko Popović kaže da se put do groblja proširuje se jer je neuslovan i uzak. „Sada je širok četiri metra i proširuje se na šest metara, od stambenih zgrada do groblja. Uz nju će se izgraditi trotoari sa obje strane po metar i po. Unutar groblja su predviđene saobraćajnice širine šest metara, takođe sa trotoarima. Unutrašnja organizacija podrazumijeva cjeline čiji je kapacitet u prosjeku 200 grobnih mjesta“, pojašnjava Popović.

Predviđena je sadnja drvoreda koji će štititi od ljetnih vrućina i služiti i kao vizuelna tampon zona između stambenih zgrada i nove grobljanske parcele. Gradiće se i parking sa 109 mjesta.
„Planirani drvoredi će se zasaditi obostrano oko parkinga čime bi se obezbijedila ta neophodna tampon zona. Što se tiče hidrotehnike i infrastrukture, mi moramo obezbijediti dovod vode, riješiti otpadne i oborinske vode, i planom je jasno definisano kako se to rješava. U okviru obuhvata planirana je izgradnja jednog ugostiteljskog objekta koji će služiti za potrebe sofri i to će biti jedna veća sala koja će se moći podijeliti na tri manje koje imaju sanitarni čvor“, rekao je Popović.
Popović ističe da se u budžetu već odvajaju sredstva za izgradnju ograde i proširenje pristupne saobraćajnice. Time se stiču uslovi za početak radova, jer je, kako kaže, posao urgentan zbog popunjenosti postojećeg groblja.
Skupština Opštine Foča je na sjednici u januaru usvojila izmjenu i dopunu dijela Regulacionog plana gradskog groblja „Barakovac“. Plan je izradio Institut za građevinarstvo „IG“ d.o.o. Trebinje.
Novinar: Vladimir Pantović
Izvor: Radio Foča
